Zimmerangebot

20 Einzelzimmer mit Balkon
12 Einzelzimmer ohne Balkon
   

 

3 Doppelzimmer ohne Balkon
 4 Einzelzimmer mit Gartensitzplatz
   

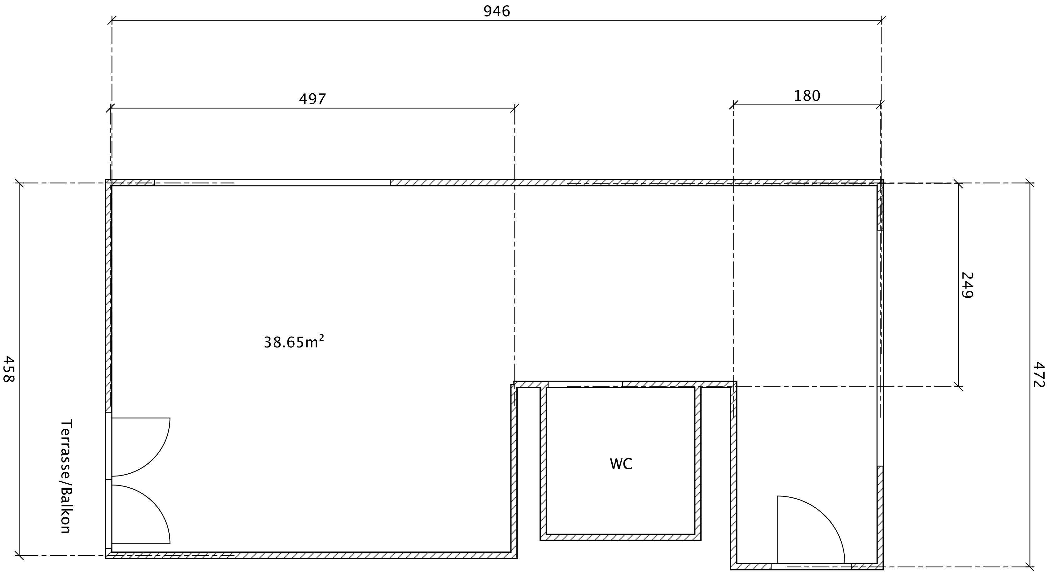
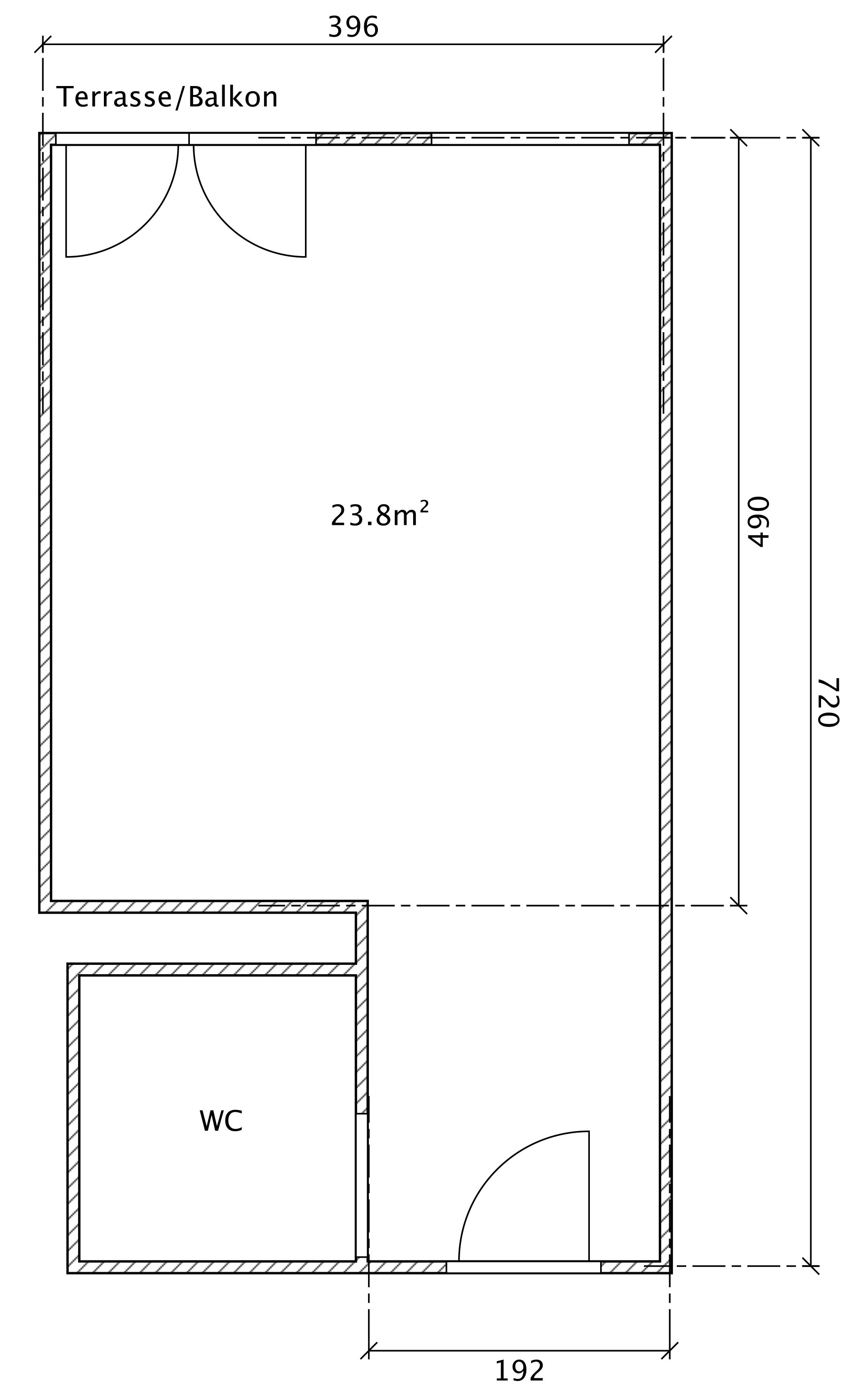
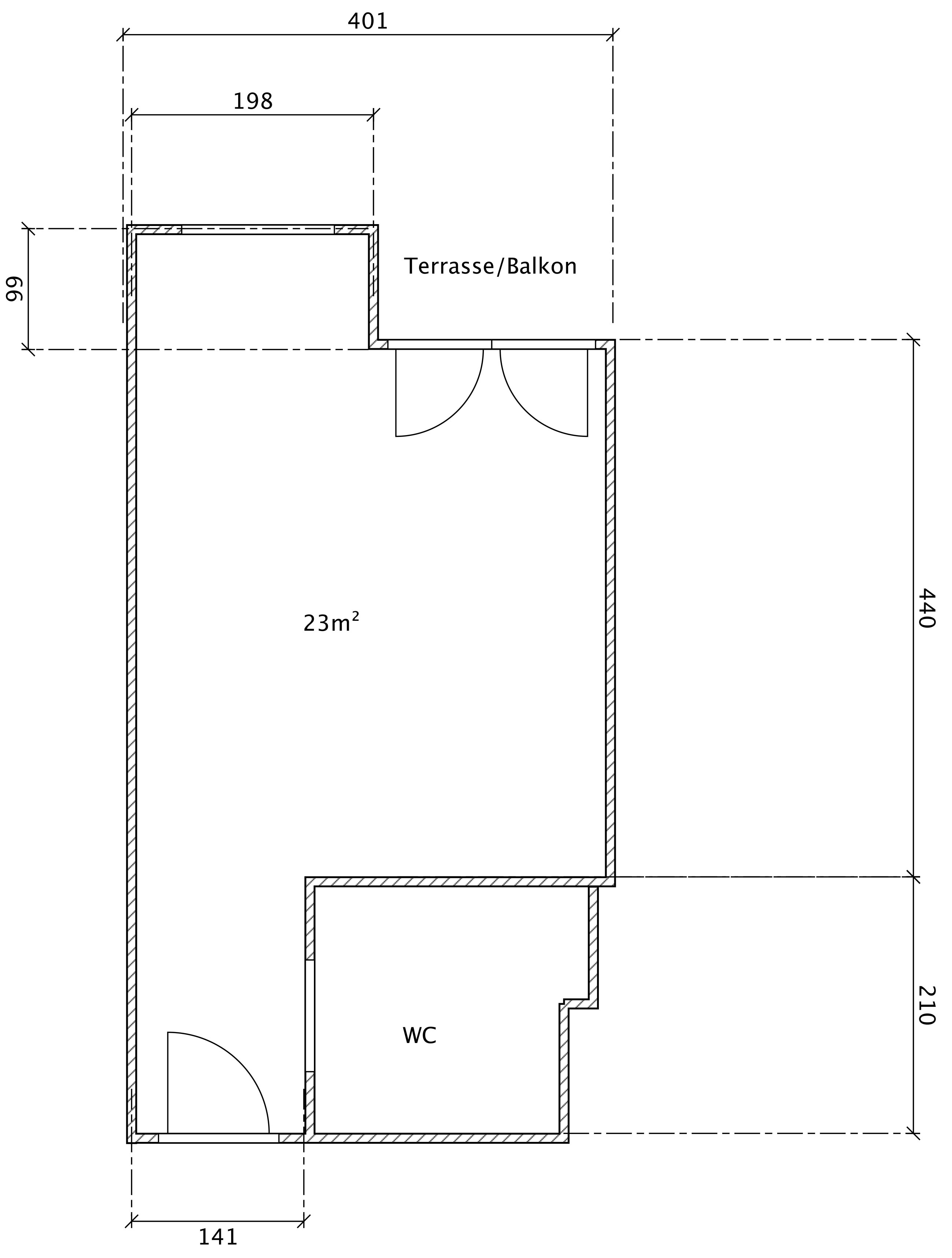
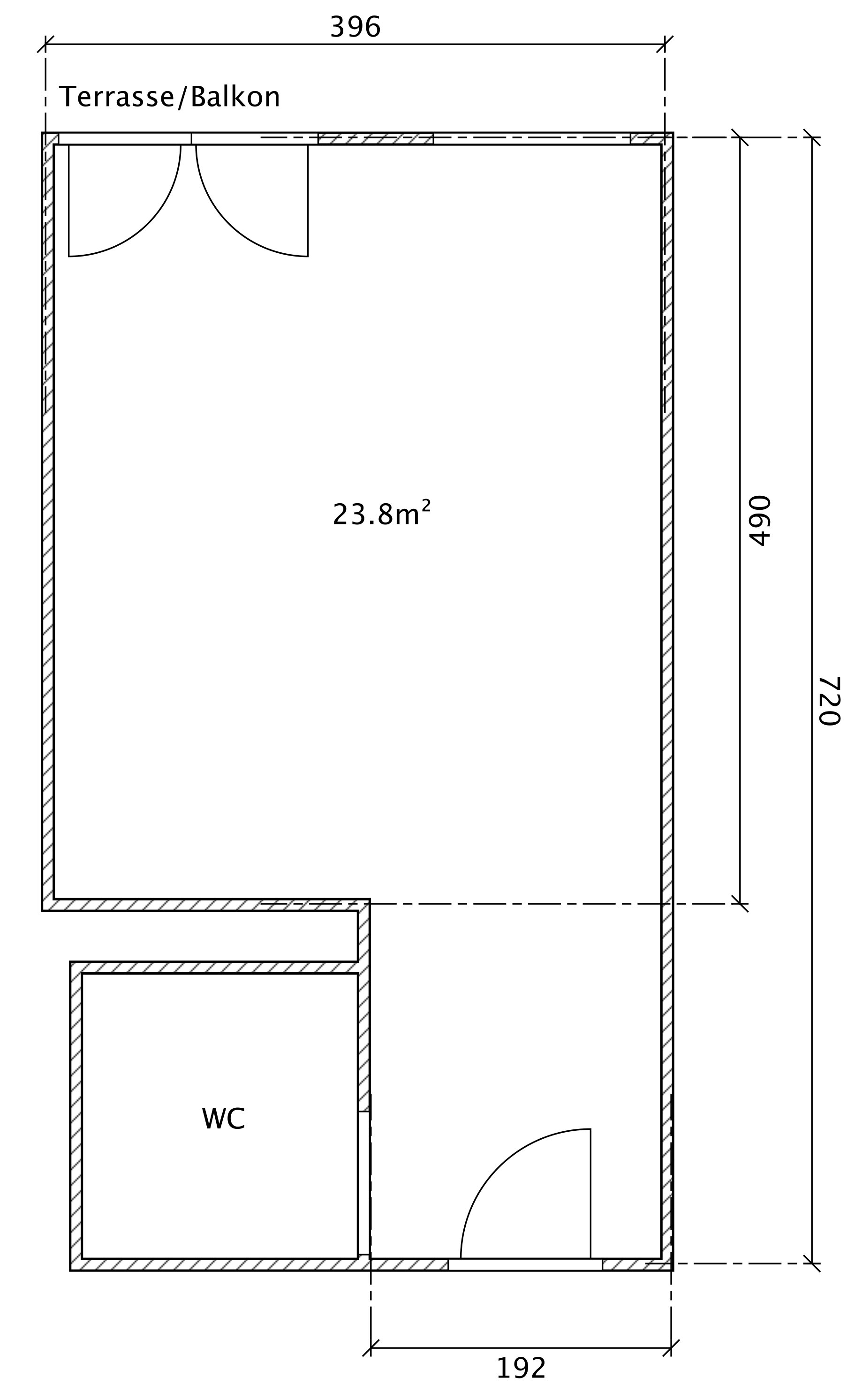
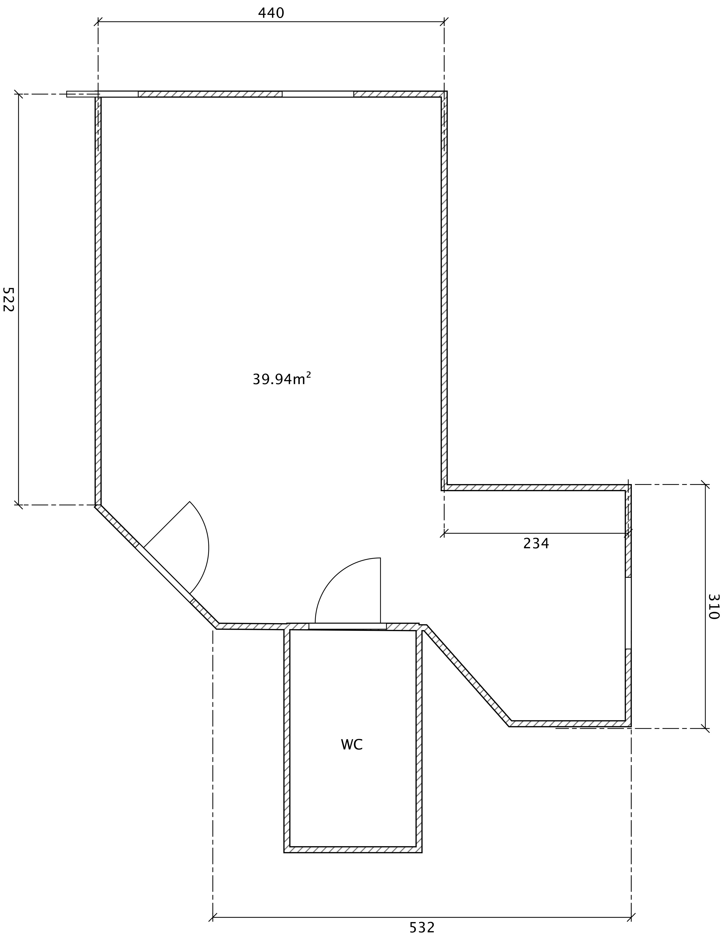
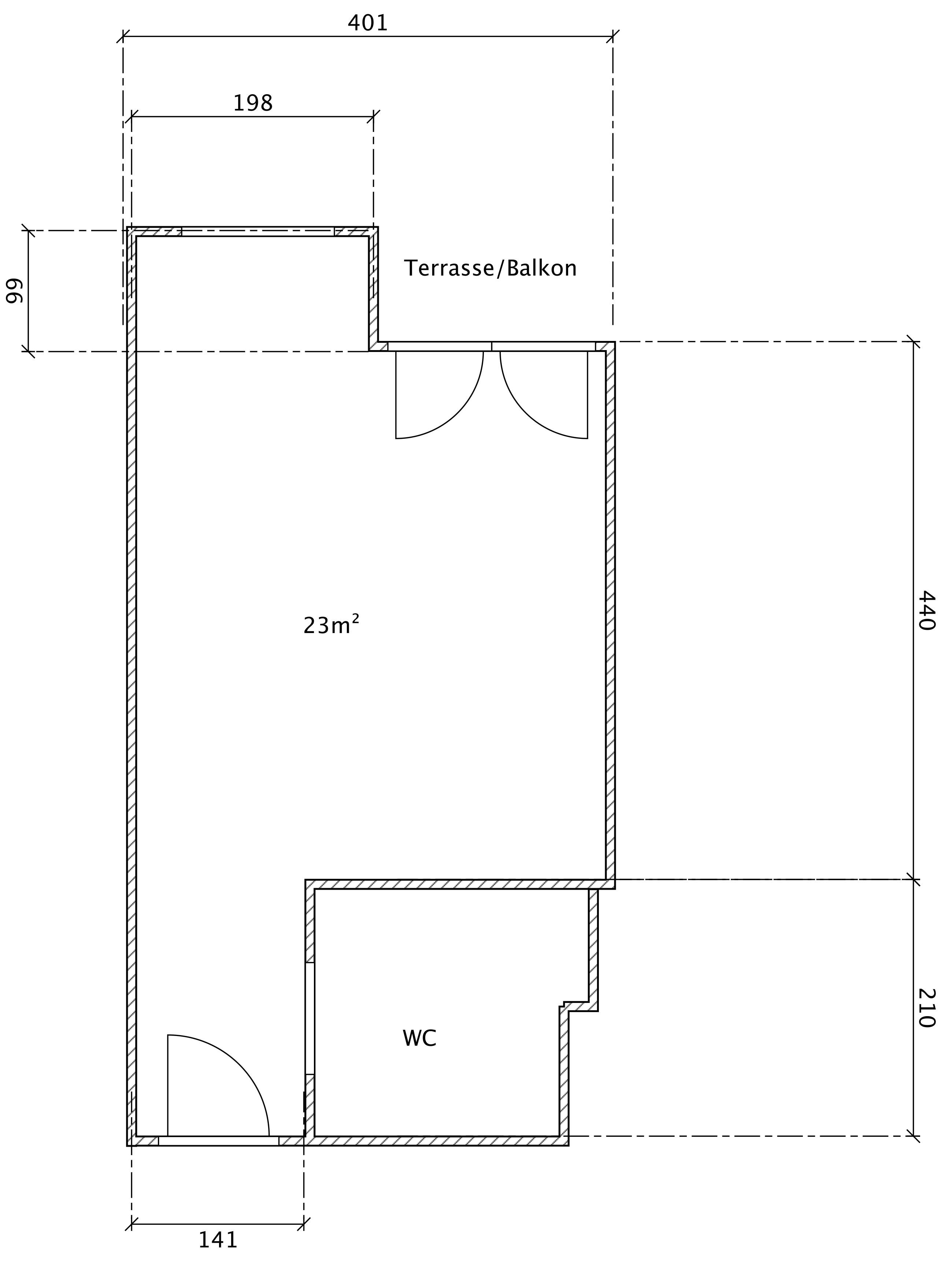
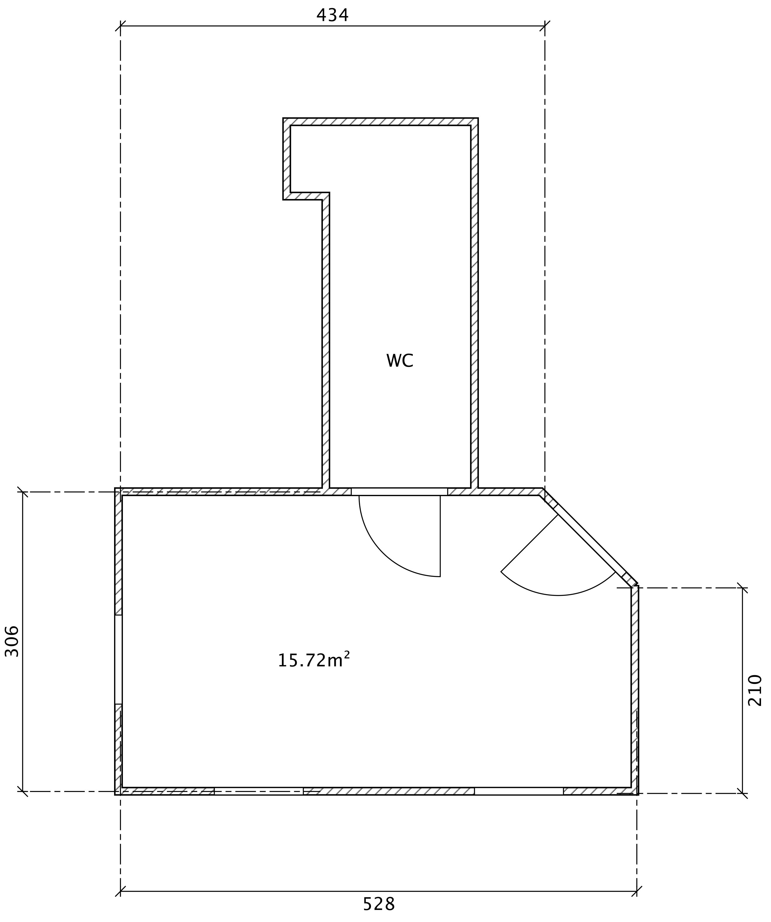
Grundrisse

Hier haben Sie die Möglichkeit, die Grundrisse unserer Zimmer anzusehen. Klicken Sie einfach auf das entsprechende Zimmer um das Bild zu öffnen. Falls Sie Fragen haben oder Informationen zur Zimmerbelegung benötigen, können Sie uns über unsere Kontakt-Seite erreichen.

Untergeschoss Osttrakt ohne Balkon

Erdgeschosse Osttrakt ohne Balkon

Erdgeschoss Westtrakt mit Sitzplatz